How To Make A Toilet Handicap Accessible . This type of toilet creates the floor space. to help prevent falls and enhance comfort, follow these accessible toilet guidelines: an example of a typical accessible toilet room with accessories and requirements read on for detailed diagrams with the recommended measures to design an accessible bathroom. The space for the toilet should have at least 15 inches from the center of the bowl to a wall or other object, says hysmith. Ensure the toilet is at a comfortable height, typically between.
from thedarkwest.blogspot.com
The space for the toilet should have at least 15 inches from the center of the bowl to a wall or other object, says hysmith. to help prevent falls and enhance comfort, follow these accessible toilet guidelines: This type of toilet creates the floor space. Ensure the toilet is at a comfortable height, typically between. read on for detailed diagrams with the recommended measures to design an accessible bathroom. an example of a typical accessible toilet room with accessories and requirements
dark west Disabled Toilet Layout Building Regs
How To Make A Toilet Handicap Accessible read on for detailed diagrams with the recommended measures to design an accessible bathroom. Ensure the toilet is at a comfortable height, typically between. The space for the toilet should have at least 15 inches from the center of the bowl to a wall or other object, says hysmith. to help prevent falls and enhance comfort, follow these accessible toilet guidelines: This type of toilet creates the floor space. read on for detailed diagrams with the recommended measures to design an accessible bathroom. an example of a typical accessible toilet room with accessories and requirements
From universaldesigntool.co.nz
Accessible toilets Details for best practise design Universal design How To Make A Toilet Handicap Accessible read on for detailed diagrams with the recommended measures to design an accessible bathroom. to help prevent falls and enhance comfort, follow these accessible toilet guidelines: Ensure the toilet is at a comfortable height, typically between. This type of toilet creates the floor space. The space for the toilet should have at least 15 inches from the center. How To Make A Toilet Handicap Accessible.
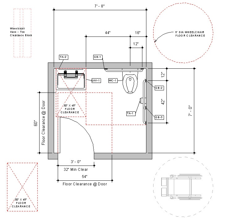
From iiitl.ac.in
WHEELCHAIR USER ACCESSIBLE TOILET DESIGN ⋆ ArchiMonarch, 51 OFF How To Make A Toilet Handicap Accessible The space for the toilet should have at least 15 inches from the center of the bowl to a wall or other object, says hysmith. to help prevent falls and enhance comfort, follow these accessible toilet guidelines: Ensure the toilet is at a comfortable height, typically between. an example of a typical accessible toilet room with accessories and. How To Make A Toilet Handicap Accessible.
From www.pinterest.com.mx
Public disabled toilet installed by Capital Prime fit out solutions How To Make A Toilet Handicap Accessible to help prevent falls and enhance comfort, follow these accessible toilet guidelines: Ensure the toilet is at a comfortable height, typically between. read on for detailed diagrams with the recommended measures to design an accessible bathroom. This type of toilet creates the floor space. The space for the toilet should have at least 15 inches from the center. How To Make A Toilet Handicap Accessible.
From ceqmozxm.blob.core.windows.net
Handicap Toilet Design Standards at Mary Harrell blog How To Make A Toilet Handicap Accessible The space for the toilet should have at least 15 inches from the center of the bowl to a wall or other object, says hysmith. an example of a typical accessible toilet room with accessories and requirements to help prevent falls and enhance comfort, follow these accessible toilet guidelines: This type of toilet creates the floor space. Ensure. How To Make A Toilet Handicap Accessible.
From www.alamy.com
Wheelchair accessible toilet for the disabled Stock Photo Alamy How To Make A Toilet Handicap Accessible an example of a typical accessible toilet room with accessories and requirements Ensure the toilet is at a comfortable height, typically between. to help prevent falls and enhance comfort, follow these accessible toilet guidelines: The space for the toilet should have at least 15 inches from the center of the bowl to a wall or other object, says. How To Make A Toilet Handicap Accessible.
From www.pinterest.com
Handicap Toilet Seats How to Install Handicap toilet, Disabled How To Make A Toilet Handicap Accessible The space for the toilet should have at least 15 inches from the center of the bowl to a wall or other object, says hysmith. This type of toilet creates the floor space. read on for detailed diagrams with the recommended measures to design an accessible bathroom. an example of a typical accessible toilet room with accessories and. How To Make A Toilet Handicap Accessible.
From www.harborcitysupply.com
Do I Need Accessible Toilet Compartments? ADA Guidelines Harbor How To Make A Toilet Handicap Accessible Ensure the toilet is at a comfortable height, typically between. The space for the toilet should have at least 15 inches from the center of the bowl to a wall or other object, says hysmith. to help prevent falls and enhance comfort, follow these accessible toilet guidelines: This type of toilet creates the floor space. an example of. How To Make A Toilet Handicap Accessible.
From www.rethinkaccess.com
ADA Accessible Single User Toilet Room Layout and Requirements How To Make A Toilet Handicap Accessible Ensure the toilet is at a comfortable height, typically between. The space for the toilet should have at least 15 inches from the center of the bowl to a wall or other object, says hysmith. This type of toilet creates the floor space. read on for detailed diagrams with the recommended measures to design an accessible bathroom. an. How To Make A Toilet Handicap Accessible.
From www.pinterest.com
Handicap Toilet Seats How to Install Toilet, New toilet, Handicap How To Make A Toilet Handicap Accessible read on for detailed diagrams with the recommended measures to design an accessible bathroom. This type of toilet creates the floor space. to help prevent falls and enhance comfort, follow these accessible toilet guidelines: Ensure the toilet is at a comfortable height, typically between. an example of a typical accessible toilet room with accessories and requirements The. How To Make A Toilet Handicap Accessible.
From www.bbc.co.uk
Disabled toilets What is a Radar key? BBC News How To Make A Toilet Handicap Accessible This type of toilet creates the floor space. to help prevent falls and enhance comfort, follow these accessible toilet guidelines: an example of a typical accessible toilet room with accessories and requirements read on for detailed diagrams with the recommended measures to design an accessible bathroom. The space for the toilet should have at least 15 inches. How To Make A Toilet Handicap Accessible.
From blog.bradleycorp.com
Download Prebuilt Revit Accessible Toilet Room Sample Model How To Make A Toilet Handicap Accessible to help prevent falls and enhance comfort, follow these accessible toilet guidelines: Ensure the toilet is at a comfortable height, typically between. The space for the toilet should have at least 15 inches from the center of the bowl to a wall or other object, says hysmith. read on for detailed diagrams with the recommended measures to design. How To Make A Toilet Handicap Accessible.
From thedarkwest.blogspot.com
dark west Disabled Toilet Layout Building Regs How To Make A Toilet Handicap Accessible Ensure the toilet is at a comfortable height, typically between. This type of toilet creates the floor space. an example of a typical accessible toilet room with accessories and requirements read on for detailed diagrams with the recommended measures to design an accessible bathroom. The space for the toilet should have at least 15 inches from the center. How To Make A Toilet Handicap Accessible.
From blog.bradleycorp.com
Download Prebuilt Revit Accessible Toilet Room Sample Model How To Make A Toilet Handicap Accessible to help prevent falls and enhance comfort, follow these accessible toilet guidelines: read on for detailed diagrams with the recommended measures to design an accessible bathroom. The space for the toilet should have at least 15 inches from the center of the bowl to a wall or other object, says hysmith. an example of a typical accessible. How To Make A Toilet Handicap Accessible.
From blog.bradleycorp.com
Download Prebuilt Revit Accessible Toilet Room Sample Model How To Make A Toilet Handicap Accessible an example of a typical accessible toilet room with accessories and requirements This type of toilet creates the floor space. Ensure the toilet is at a comfortable height, typically between. The space for the toilet should have at least 15 inches from the center of the bowl to a wall or other object, says hysmith. to help prevent. How To Make A Toilet Handicap Accessible.
From www.familyhandyman.com
How To Make a Toilet Handicap Accessible The Family Handyman How To Make A Toilet Handicap Accessible Ensure the toilet is at a comfortable height, typically between. This type of toilet creates the floor space. The space for the toilet should have at least 15 inches from the center of the bowl to a wall or other object, says hysmith. to help prevent falls and enhance comfort, follow these accessible toilet guidelines: an example of. How To Make A Toilet Handicap Accessible.
From www.pinterest.co.uk
Solo Powered Toilet Lift Handicap toilet, Handicap bathroom, Toilet How To Make A Toilet Handicap Accessible The space for the toilet should have at least 15 inches from the center of the bowl to a wall or other object, says hysmith. to help prevent falls and enhance comfort, follow these accessible toilet guidelines: read on for detailed diagrams with the recommended measures to design an accessible bathroom. Ensure the toilet is at a comfortable. How To Make A Toilet Handicap Accessible.
From cad-block.com
Disabled toilet DWG free download How To Make A Toilet Handicap Accessible The space for the toilet should have at least 15 inches from the center of the bowl to a wall or other object, says hysmith. read on for detailed diagrams with the recommended measures to design an accessible bathroom. to help prevent falls and enhance comfort, follow these accessible toilet guidelines: an example of a typical accessible. How To Make A Toilet Handicap Accessible.
From www.pinterest.com
Mountway Solo Toilet Lift Absolute Mobility Handicap bathroom How To Make A Toilet Handicap Accessible The space for the toilet should have at least 15 inches from the center of the bowl to a wall or other object, says hysmith. This type of toilet creates the floor space. Ensure the toilet is at a comfortable height, typically between. to help prevent falls and enhance comfort, follow these accessible toilet guidelines: an example of. How To Make A Toilet Handicap Accessible.